ベストカレンダーのロゴ ベストカレンダー

10/25開催|ミッドセンチュリーモダン×DJブース見学会 in 名古屋

名古屋ミッドセンチュリ見学会

開催日:10月25日

📅 カレンダーに追加:GoogleiPhone/Outlook

名古屋ミッドセンチュリ見学会
見学会ってどうやって申し込むの?参加費はかかるの?
特設ページまたは電話(0120-85-7755)で事前予約が必要。参加費は無料で、申込締切は2025-10-24。見学は2025-10-25の10:00〜15:00、詳しい会場住所は予約者に通知されます。成約特典の家具プレゼント情報も確認できます。
実際に行くと写真と何が違うの?何が見られるの?
床や造作家具の赤みやオレンジのアクセント、照明との相性、アール(曲線)の質感、3LDK→2LDKの間取り変化、固定型DJブースの生活導線やスケール感など、写真では伝わりにくい実物の質感や動線を確認できます。

ミッドセンチュリーモダンの佇まいと曲線がつくる居心地

愛知県名古屋市昭和区で開催されるリノベーション見学会では、赤みのある木目とオレンジのアクセントを基調にしたミッドセンチュリーモダンの住まいを実際に見ることができます。写真や図面だけでは伝わりづらい素材の質感、色の深み、照明との調和を現地で確認できる機会です。

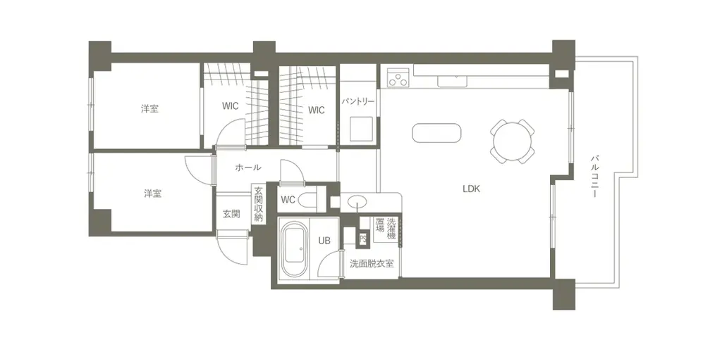
本プロジェクトは築40年のマンションを対象に、既存の間取り3LDKを2LDKへと変更し、約1,460万円の費用(2025年施工)をかけてリノベーションを施しています。打合せ期間は約3か月、工事期間も約3か月と計画されています。

【初公開】生活感を隠し、趣味を空間の主役に!固定型DJブース×アール壁が彩るミッドセンチュリーモダンリノベ見学会|名古屋市昭和区 画像 2

素材と色づかいに関する工夫

赤みを帯びた木目の床や造作家具を採用し、アクセントにオレンジを配しています。これにより、可愛らしさと落ち着きを両立させた内装が実現されています。家具や照明とのバランスを重視した設計で、空間全体の統一感を図っています。

直線的になりがちな室内に対して、梁の加工やパントリー開口、洗面台天板など随所にアール(曲線)を取り入れ、柔らかな印象を強めています。曲線が空間の主題を損なうことなく、むしろ落ち着いた佇まいを生み出しています。

  • ベースカラー:木目(赤み)
  • アクセント:オレンジ
  • 曲線の使用箇所:梁、パントリー開口、洗面台天板など
【初公開】生活感を隠し、趣味を空間の主役に!固定型DJブース×アール壁が彩るミッドセンチュリーモダンリノベ見学会|名古屋市昭和区 画像 3

リビングを彩る固定型DJブースと可動性を持たせた家具設計

このリノベーション最大の特徴の一つが、リビングに溶け込む固定型のDJブースです。キッチンの延長線上に設置されており、リビングで家族と過ごしながら趣味を楽しめる位置づけになっています。視覚的にも生活動線にも配慮された設計です。

DJブースは固定型でありながら、移動式カウンターを組み合わせることで作業スペースや配膳台としても活用できるよう工夫されています。趣味の機材を置きながらも生活感を整えるための造作収納や配線計画が施されています。

【初公開】生活感を隠し、趣味を空間の主役に!固定型DJブース×アール壁が彩るミッドセンチュリーモダンリノベ見学会|名古屋市昭和区 画像 4

趣味と暮らしを両立させるレイアウト

リビングを中心に配置することで、家族との共存を図る一方、機器の音響配慮や収納位置の最適化といった実務的な配慮もされています。可動式の家具を用いることで、来客時や日常の活動に応じた使い分けが可能です。

この空間設計は、趣味の機器を主役に据えつつ、生活の動線や居住性を損なわない点を重視しています。写真では分かりにくいスケール感や動線の流れは見学会で確認することが推奨されています。

【初公開】生活感を隠し、趣味を空間の主役に!固定型DJブース×アール壁が彩るミッドセンチュリーモダンリノベ見学会|名古屋市昭和区 画像 5

見学会の開催概要と参加方法

リノベーション見学会は2025年10月25日(土)に開催されます。開催時間は10時から15時までで、参加費は無料です。ただし事前予約制で、申込締切は2025年10月24日(金)となっています。オーナー様のプライバシー保護のため、詳しい住所は予約者のみに通知されます。

見学会の案内や予約は特設イベントページで受け付けています。詳細情報や画像、会場案内は下記リンクから確認できます。
https://kulabo.co.jp/events/112

開催日
2025年10月25日(土)
時間
10時~15時
開催場所
愛知県名古屋市昭和区(詳細は予約者に通知)
参加費
無料(事前予約制)
申込締切
2025年10月24日(金)
【初公開】生活感を隠し、趣味を空間の主役に!固定型DJブース×アール壁が彩るミッドセンチュリーモダンリノベ見学会|名古屋市昭和区 画像 6

来場特典・KULABO(株式会社sumarch)について

見学会来場者には来場特典として、当社でリノベーションを成約した場合に家具プレゼントが適用されます。成約金額に応じた付与額が定められており、特典規約が適用されます。詳細は特設イベントページで確認できます。

特典の内訳は以下の通りです。成約金額に応じて家具の付与額が変わります。

  1. 500万円~999万円:家具10万円分
  2. 1,000万円以上:家具20万円分

特典規約についてはイベントページの記載に従ってください。プレゼントの適用条件や範囲、締切など具体的な規約が設定されています。

【初公開】生活感を隠し、趣味を空間の主役に!固定型DJブース×アール壁が彩るミッドセンチュリーモダンリノベ見学会|名古屋市昭和区 画像 7

KULABO(株式会社sumarch)事業内容と拠点

リノベーションスタジオKULABOは、愛知県・岐阜県・東京都(一部エリア除く)で中古戸建・中古マンションのリノベーションや大規模リフォームを提案しています。物件紹介からプラン・デザイン、施工、アフターメンテナンスまで一貫したサービス提供を行っています。

会社概要の主な情報は以下の通りです。連絡先や所在地、設立年、従業員数などの基本情報が記載されています。

会社名
株式会社sumarch
ブランド名
リノベーションスタジオKULABO
本社所在地
〒450-6419 愛知県名古屋市中村区名駅三丁目28番12号 大名古屋ビルヂング19F
TEL / FAX
TEL:0120-85-7755(リノベーションスタジオお客様総合窓口 10:00~18:00 年中無休・年末年始除く)

本社代表番号:052-526-1395 FAX:052-526-1396
代表者
代表取締役 鳥居 儀彰
設立
2009年11月
従業員数
250名(2025年4月時点)

KULABOはデザイン性と価格のバランスを重視し、部分リフォームからフルリノベーション、耐震や断熱工事まで幅広く対応しています。対応エリアやサービス内容についての詳細は公式サイトをご確認ください。
https://kulabo.co.jp/

【初公開】生活感を隠し、趣味を空間の主役に!固定型DJブース×アール壁が彩るミッドセンチュリーモダンリノベ見学会|名古屋市昭和区 画像 8

プロジェクトDATAと見学会情報の整理

ここまで紹介したリノベーションの主要データと見学会の要点を表形式で整理します。見学会に参加する際のポイントや問い合わせ先も併せて記載しています。

項目 内容
イベント名 マンションリノベーション見学会(名古屋市昭和区)
開催日 2025年10月25日(土) 10:00~15:00
申込締切 2025年10月24日(金)
開催場所 愛知県名古屋市昭和区(詳細は予約者へ通知)
参加費 無料(事前予約制)
リノベーション費用 約1,460万円(2025年施工)
築年数 40年
間取り Before:3LDK → After:2LDK
打合せ期間 約3か月
工事期間 約3か月
来場特典 500万~999万:家具10万円分、1,000万以上:家具20万円分(特典規約あり)
問い合わせ リノベーションスタジオお客様総合窓口 0120-85-7755(10:00~18:00)
関連リンク https://kulabo.co.jp/events/112

上の表は、本見学会の主要情報と本リノベーションプロジェクトの要点を整理したものです。予約や詳細確認、参加に関する問い合わせについては指定の窓口または特設ページをご参照ください。プレスリリース中の画像やプレスキットは同社プレスページからダウンロード可能です。